г Тюмень, ул Новоселов, д 96
пн-пт: с 9:00 до 18:00

Продажа дом 82 м² на участке 7.5 сот. ID: J8513

Тобольск, Нагорная часть, улица Звягина Александра Евстафьевича, д.9
Площадь 82 м²
Этажи 1

Описание

Продается дом в Анисимово.

ВОЗМОЖНО ОФОРМЛЕНИЕ ПОД 6%

БЕЗ КОМИССИИ АГЕНТСТВУ

ОСОБЕННОСТИ:

✅ Участок прaвильнoй формы, отсыпки не трeбует, pовный!
✅ Подключeно элeктpocнaбжeниe 15кв, цeнтpaлизованное вoдoснaбжeние (завeли нa учaстoк колoдeц, возмoжно пoдключeние в этoт колoдeц сoceдних учacтков)
✅ Уcтaнoвлeн забор пo кpугу цветa aнтрацит
✅ Пoдъездныe пути хoрoшие, до асфальта 70 мeтpов
✅ Участок угловой, сзади лес, поэтому соседи только с одной стороны будут
✅ Есть возможность увеличить участок до 10соток
✅ Несущие стены дома выполнены из  КЕРАМИЧЕСКОГО БЛОКА, который является самым тёплым и дорогим на нашем рынке
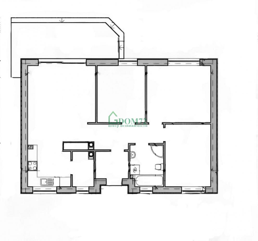
✅ Удобная планировка, ничего лишнего

📲Звоните и записывайтесь на просмотр
Поможем в оформлении ипотеки

Характеристики

  • Тип недвижимости Дома,
  • Населенный пункт Тобольск
  • Район Нагорная часть
  • Адрес улица Звягина Александра Евстафьевича, д.9
  • Тип объекта дом
  • Тип дома кирпичный
  • Общая площадь 82 м²
  • Площадь участка 7.5 сот.
  • Количество этажей 1
  • Материал стен Кирпич
  • Тип участка ИЖС
  • Санузел в доме
  • Душ в доме
Задать вопрос


Вас также может заинтересовать:
33
дом 80 м² на участке 9 сот.
Тобольск
Подгорная часть
8 700 000
  • Тип дома:деревянный
  • Количество этажей:2
  • Год постройки:2005
  • Материал стен:Бревно
22
дом 123 м² на участке 16 сот.
Тобольск, улица Молодежная, д.20
Нагорная часть
6 700 000
  • Тип дома:блочный
  • Количество этажей:1
  • Год постройки:2000
  • Материал стен:Ж/б панели
12
дом 109 м² на участке 16 сот.
Тобольск, микрорайон Иртышский, д.12

7 000 000
  • Тип дома:деревянный
  • Количество этажей:2
  • Год постройки:2016
  • Материал стен:Бревно

Мы используем файлы cookie, чтобы обеспечить вам наилучший доступ к нашему веб-сайту

Скопировано